Újszeged kedvelt részén új építésű családi ház!

13245 Nyomtatás Ajánlás Facebook

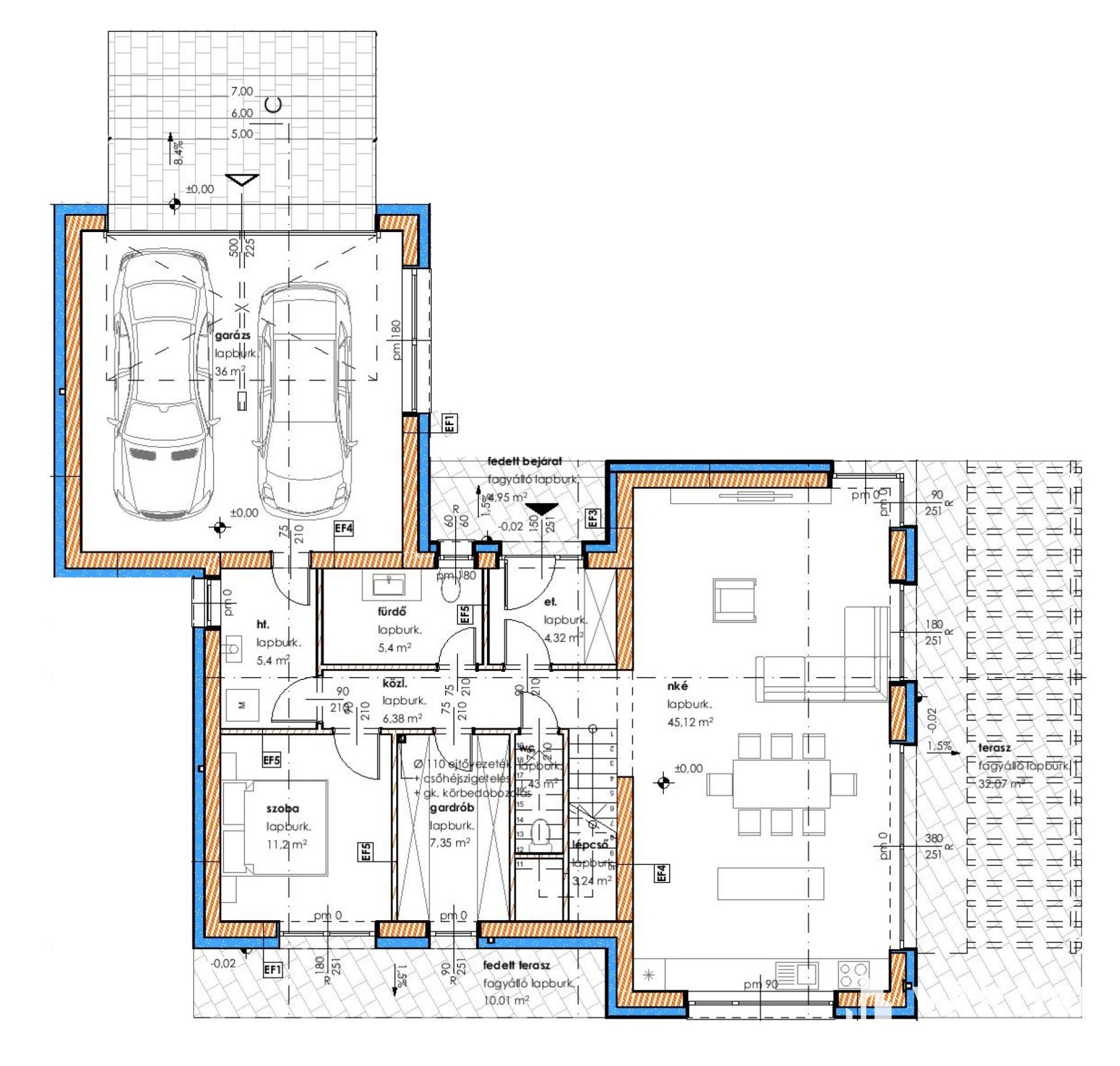
Újszeged fiatalos részén, a Kállay ligetben eladó, jó elosztású, nappali + 4 szobás kétszintes, úszómedencés, 211 négyzetméteres, kulcsrakész családi ház, dupla garázzsal, 300 négyzetméter telekkel.
Az ingatlan közvetlen szomszédságában Nova bevásárlóközpont, Gellért szabadidőközpont, valamint a Holt- Maros sétány található.
A családi ház főbb jellemzői:
- lakótér: 189,84 m2
- dupla garázs: 36 m2
- fedett terasz: 50,56 m2
- amerikai konyhás nappali 45,12 m3
- 4 hálószoba
- 2 fürdőszoba
- háztartási/gépészeti helyiség
- kamra
- tágas szélfogó, közlekedő

- minőségi műanyag külső nyílászárók (3 rétegű üvegezéssel)
- hőszivattyús fűtésrendszer (levegő-víz hőszivattyú, 300l-es tárolóval)
- padlófűtés
- mennyezet hűtés- fűtés
- kiépített villamoshálózat (kapcsolókkal és konnektorokkal)
- festett falak
- elektromos garázskapu
- kaputelefon
- redőny előkészítés
- riasztó rendszer alap csövezve
- belső helyiségek hideg- és meleg burkolatai igény szerint választhatóak (szerződésben meghatározott mennyiségben és árban)

- 6x3 méteres zsalukő medence pvc borítással vízforgató rendszerrel
- kert parkosítása (füvesítés), öntöző rendszer kiépítése
- prémium anyagok
- kertkapcsolat

kulcsrakész fizetési ütemezés:
-Alapozás elkészültekor 20,00%
-Földszint feletti födém betonszerkezetének elkészültekor 20,00%
-Első emelet feletti födém, betonszerkezetének elkészültekor 20,00%
-Tetőszerkezet elkészültekor 20,00%
-Szerkezetkész állapot elkészültekor 10,00%
-Kulcsrakész állapot elkészültekor 10,00

Amennyiben felkeltette érdeklődését az ingatlan, hívjon bizalommal a 06302490482 tel. számon, akár hétvégén is.
dr. Vass Zoltán

Dr. Vass Zoltán
PRÉMIUM

Dr. Vass Zoltán

10 éve a Városi Ingatlaniroda tagja
Ingatlanértékesítő
Szeged
+36 (30) 249 0482
Észrevétel a hirdetéssel kapcsolatban
Egy ingatlanos naplója