ÁLOMOTTHON NAPOS KERTTEL-KÉTÁLLÁSOS GARÁZZSAL SZENTENDRÉN

66 Nyomtatás Ajánlás Facebook

Eladó Szentendre közkedvelt részén, a Tátika utcában egy kiváló adottságokkal rendelkező, 165 m²-es családi ház, 1047 m²-es telken, 159.000.000 Ft irányáron.
Ez az ingatlan tökéletes választás azoknak, akik tágas tereket, nyugodt zöld környezetet és praktikus extrákat keresnek egy igazán szerethető otthonban.
A fő szint központja a napfényes, amerikai konyhás nappali, amely nagy ablakaival a kertre néz, így a természet közelsége minden nap része lehet az otthoni életnek. Emellett tágas előszoba, 2 teljes értékű szoba (az egyik akár ketté is osztható), fürdőszoba és külön WC található.
Kényelmi extrák:
✔ gázfűtés radiátorokkal a szobákban
✔ padlófűtés a nappaliban, konyhában, előszobában és folyosón
✔ belső porszívó kiállás
✔ riasztórendszer
A ház további nagy előnye a beépíthető tetőtér, amely újabb lakóterek kialakítására ad lehetőséget.
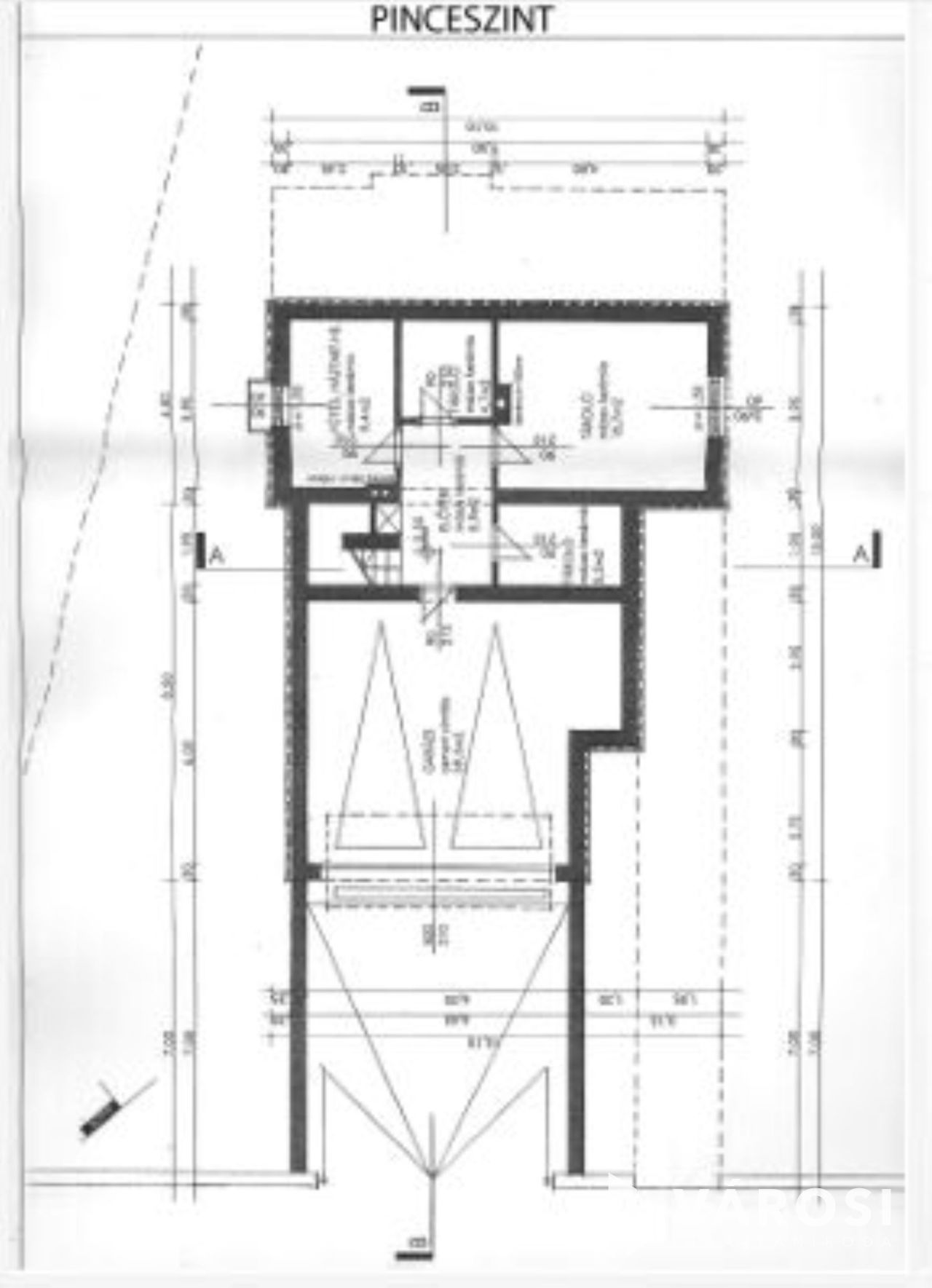
Pinceszint / alsó szint – különleges lehetőségek tárháza.

Az alsó szint rendkívül sokoldalúan használható, itt található:
- vendégszoba
- külön mosógéphelyiség
- zuhanyzó és külön WC
- kamra saját szellőzővel, amely nyáron is kellemesen hűvös marad
- akvárium szoba, 2 db szellőzővel, automata fény- és hőszabályzóval – de igény szerint hobbiszoba, iroda, wellness vagy egyéb funkcióra is átalakítható
- további tárolási lehetőségek
- nagy, két autó számára alkalmas garázs

Amit imádni fog benne:
✔ világos, napos terek
✔ kertre néző nappali
✔ hatalmas telek
✔ rengeteg tárolóhely
✔ bővíthető tetőtér
✔ különleges extrák
✔ családbarát kialakítás
✔ nyugodt, kiváló környezet

Ez az ingatlan nem csupán egy ház, hanem egy sok lehetőséget rejtő, értékálló otthon Szentendre egyik kedvelt részén.
Irányár: 159.000.000 Ft

Szöllősi Tünde

Szöllősi Tünde

1 éve a Városi Ingatlaniroda tagja
Ingatlanértékesítő
Budapest
+36 (20) 315 5277
Észrevétel a hirdetéssel kapcsolatban
Egy ingatlanos naplója